Existuje poměrně velká nabídka těchto přízemních domů-
Můžete si zvolit nejen jejich tvar, dispozic místností, ale i
například střechu. Pokud je vašim požadavkem více prostoru,
poté je pro vás ideální bungalov Effective C, který má
užitnou plochu 139,18 m2 a nádherné
dispozice 5 + KK. Zastřešuje jej sedlová střecha a tvarově
se jedná o dům s půdorysem L.
Dřevostavba
5 980 000 Kč
vč. 12% DPH
Zděný pórobeton
6 430 000 Kč
vč. 12% DPH
| Dispozice | 5 + KK | 
| Užitná plocha | 139.18(m2) | 
| Zastavěná plocha dřevostavba | 166.1(m2) | 
| Zastavěná plocha zděný | 171.6(m2) | 
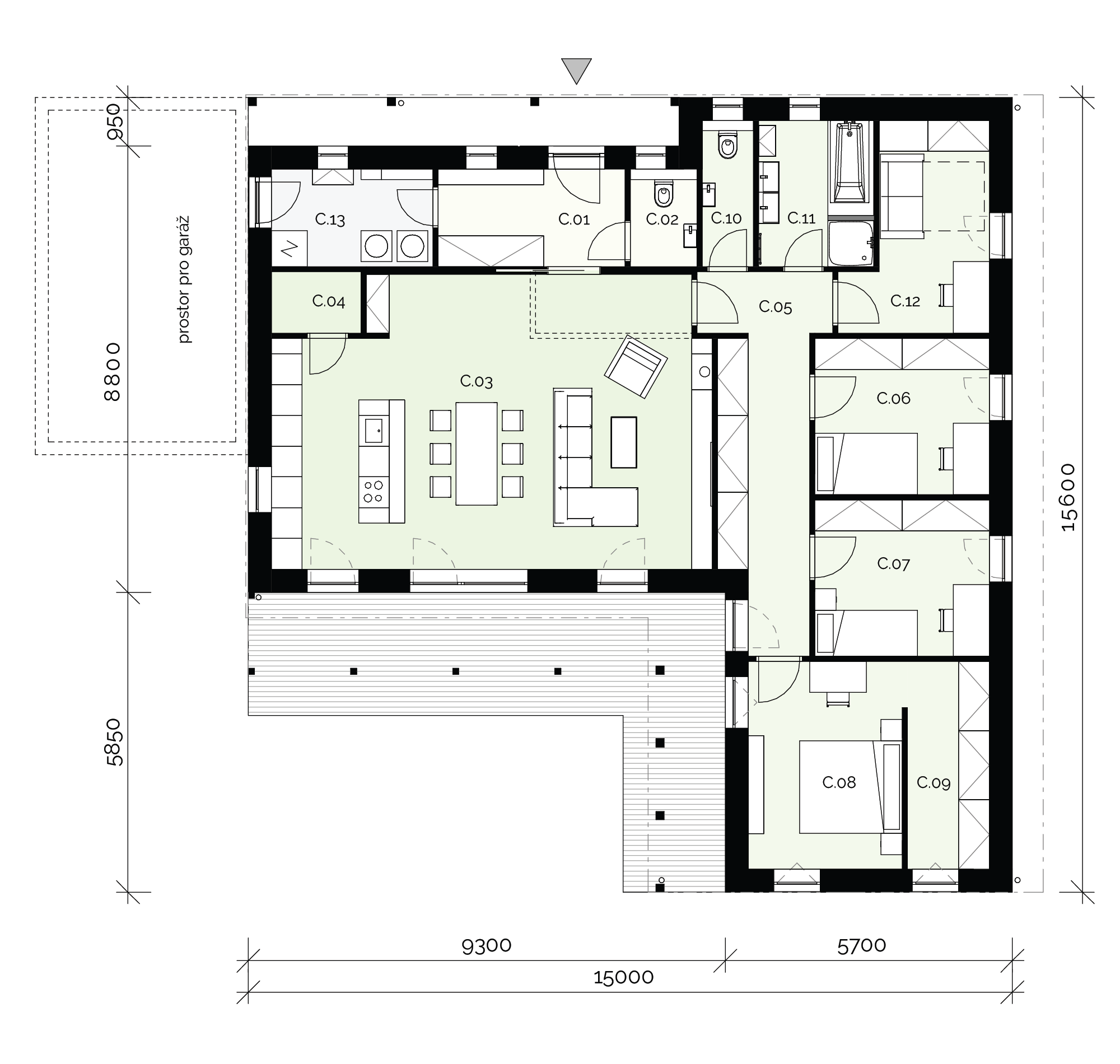
Prostorný objekt
Vstupní část tvoří zádveří s
technickou místností, šatnou a samostatnou toaletou. Technická
místnost je navíc přístupná i zvenčí, lze ji využít jako
sklad zahradního nábytku. Posuvné dveře oddělují obývací
prostor, který je doplněný krbovými kamny. Místnost je propojená
s kuchyňským koutem a spíží. 
Soukromou část tvoří prostorná
ložnice, 3 pokoje, koupelna a oddělená toaleta. V celém
bungalovu objevíte dostatek místa, z nichž vytvoříte další
úložné prostory. 
Bungalov vám nabízí další
výhodnou úsporu a to energetickou, kterou zajišťuje tepelné čerpadlo Stiebel Eltron. 
(pozn. krbová kamna a kuchyňská linka nejsou ve standardu vybavení)
Bungalov Effective C je ve dvou
variantách
- dřevostavba se z.p. 166,1 m2
 - zděný dům se z.p. 171,6 m2
 
Moderní bungalovy nabízejí velmi
praktické a navíc úsporné bydlení. Ocení ho především starší
generace, ale existují i verze bungalovů pro větší rodinu.  
Effective Cse sedlovou střechou
Effective CVs valbovou střechou| C.01 - zádveří | 7.34 m2 | 
| C.02 – WC | 2.21 m2 | 
| C.03 - obývací prostor + KK | 47.87 m2 | 
| C.04 - spíž | 2.10 m2 | 
| C.05 - chodba | 14.14 m2 | 
| C.06 - pokoj | 10.57 m2 | 
| C.07 - pokoj | 10.57 m2 | 
| C.08 - ložnice | 12.59 m2 | 
| C.09 – šatna | 6.53 m2 | 
| C.10 - WC | 2.58 m2 | 
| C.11 - koupelna | 6.39 m2 | 
| C.12 - pracovna | 10.08 m2 | 
| C.13 - TM | 6.21 m2 | 
| Celkem: | 139.18 m2 | 
Bungalov Effective C - Karta domustáhnout
Nechte si spočítat hypotéku domu Effective C pomocí hypokalkulačky EdoFinance.czPřejít na hypokalkulačku



























































